/ 232 old colony ave

Role:          Project Architect / Project Manager
Type:         Residential + Mixed-Use
Location:   South Boston, MA

*Images/photos self-produced during employment at RODE Architects, unless otherwise noted.

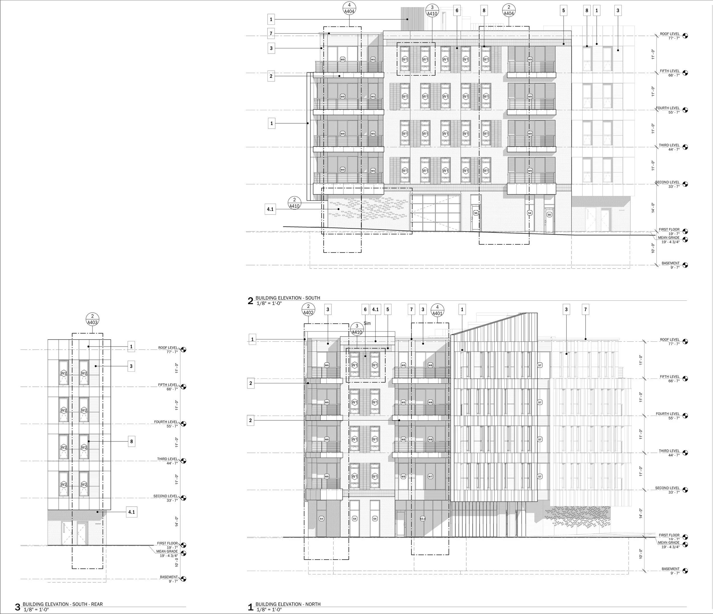
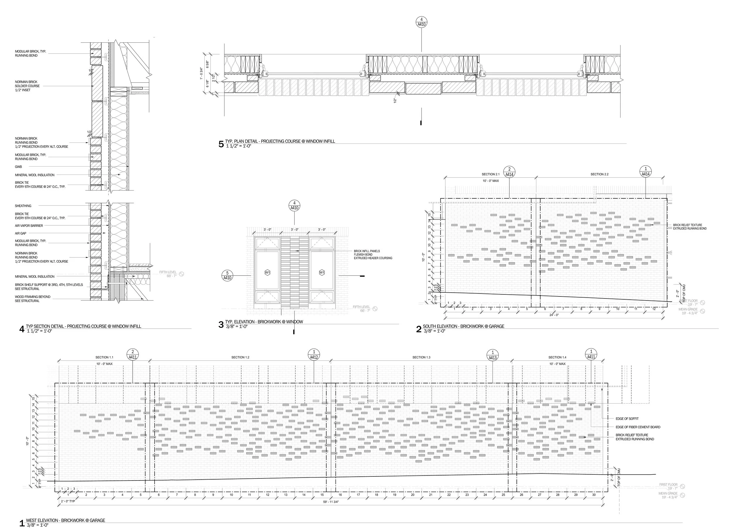
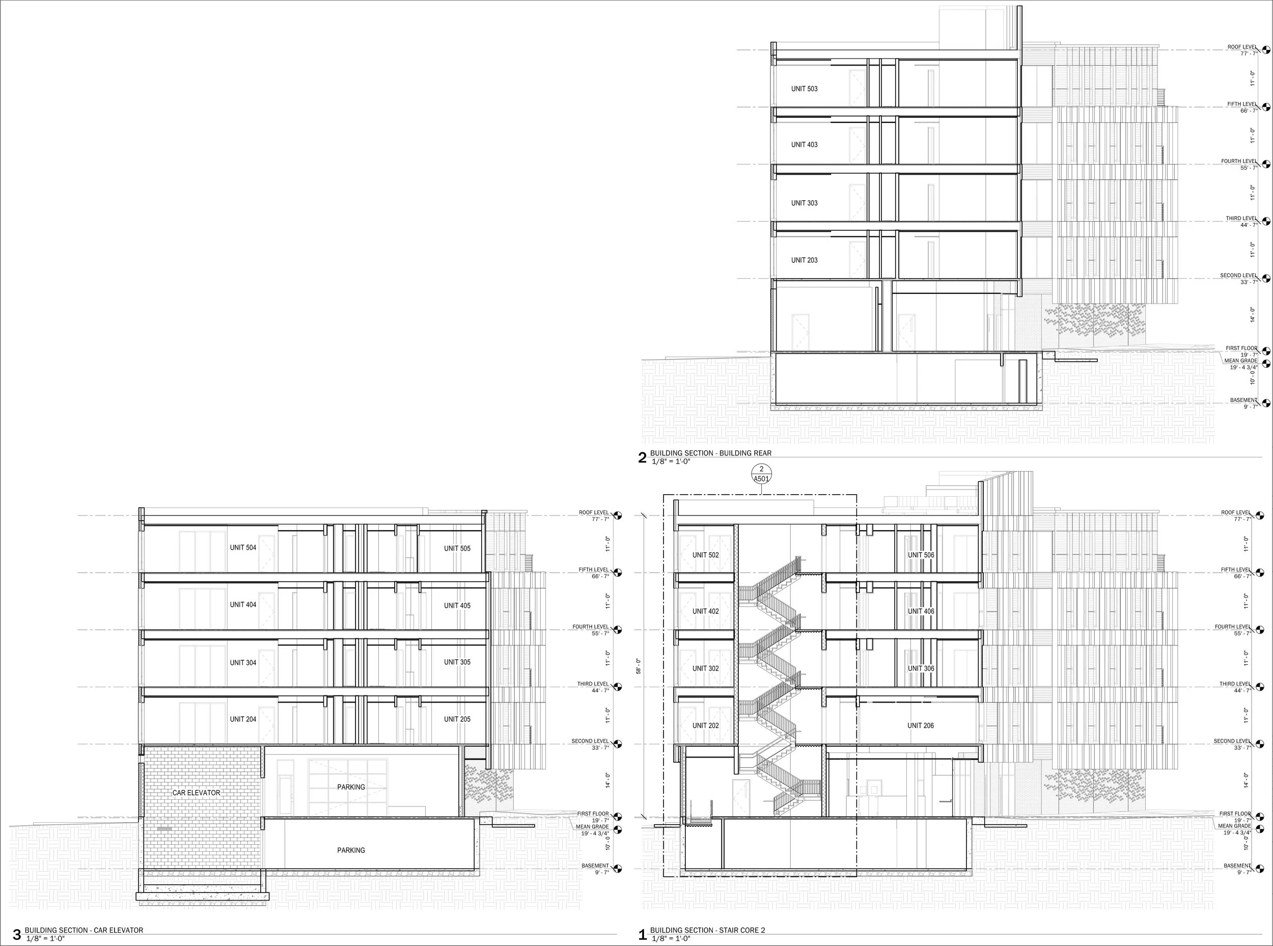
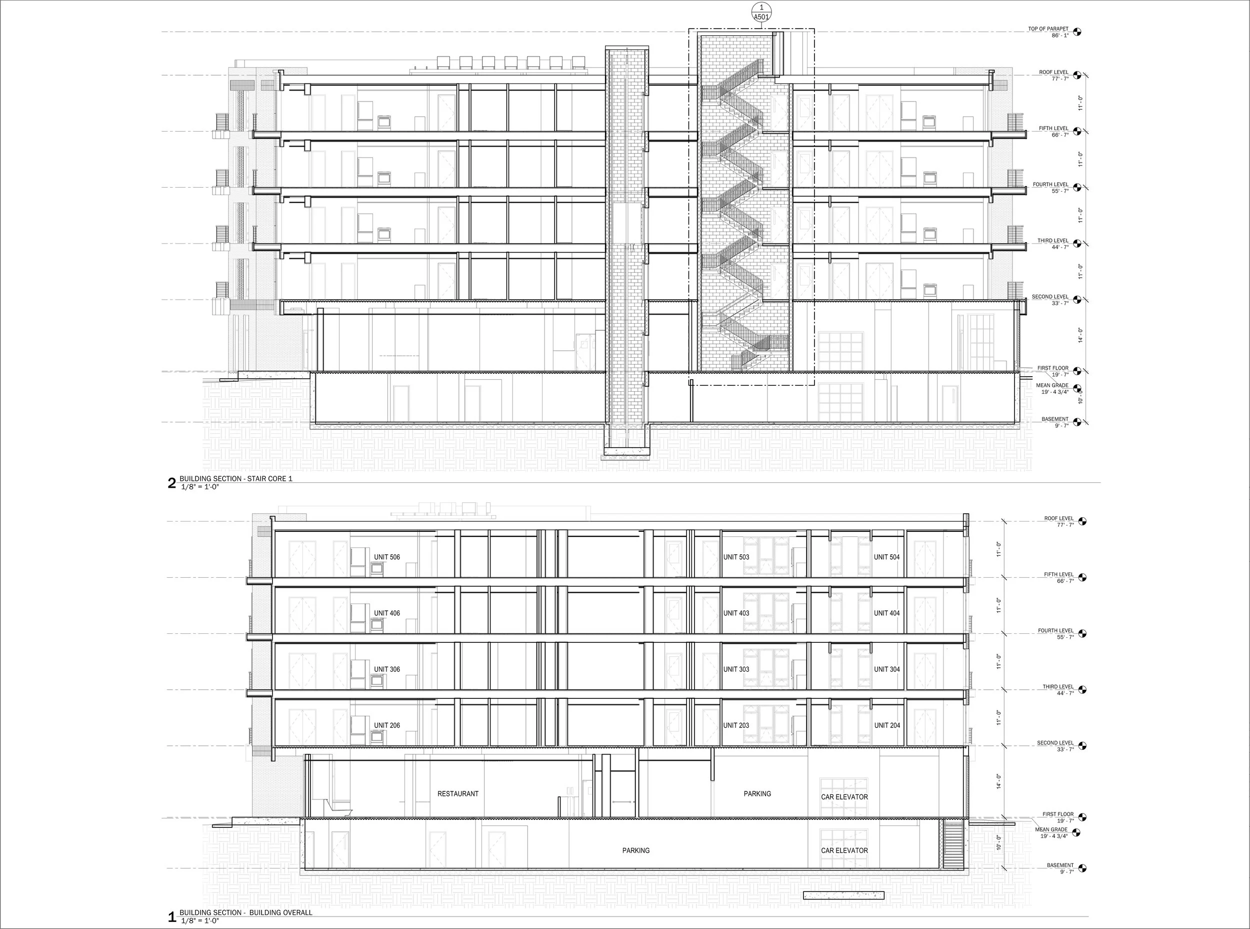
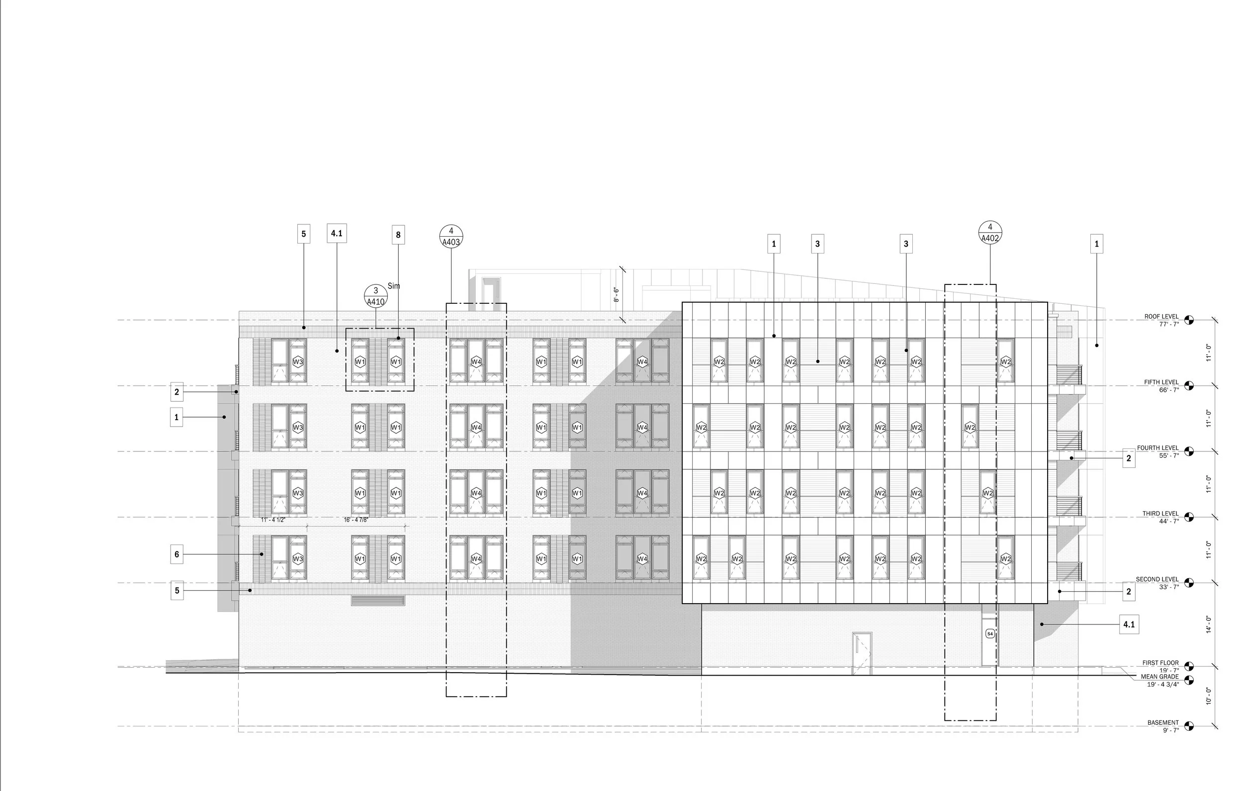
232 Old Colony is a 5-story residential building near South Boston’s Andrew Square neighborhood. The design concept engages the parcel’s constraints with a series of exterior planes that segment the building and inform the interior unit layouts. Various building folds reference sight lines and intersecting street grids. A contemporary material palette of fiber cement board, HPL rainscreen, and various brick bonding techniques further reinforce the building’s volumetric significance. Project involvement included initial design concept, permit submission, design development, construction document production, shop drawing review, consultant coordination, and construction administration.

By developing a close relationship with all members of the sub-consultant teams, solutions were able to be developed in real-time when appropriate, and flagged for incorporation into field reports and sketch submissions when of a higher complexity. Storefront framing details, CMU stair core clearance tolerances, and window spacing requirements were all self-detailed, then reviewed and confirmed during field visits. Working closely with the mason and his team allowed for a conceptual brick pattern to be detailed accordingly and beautifully realized.

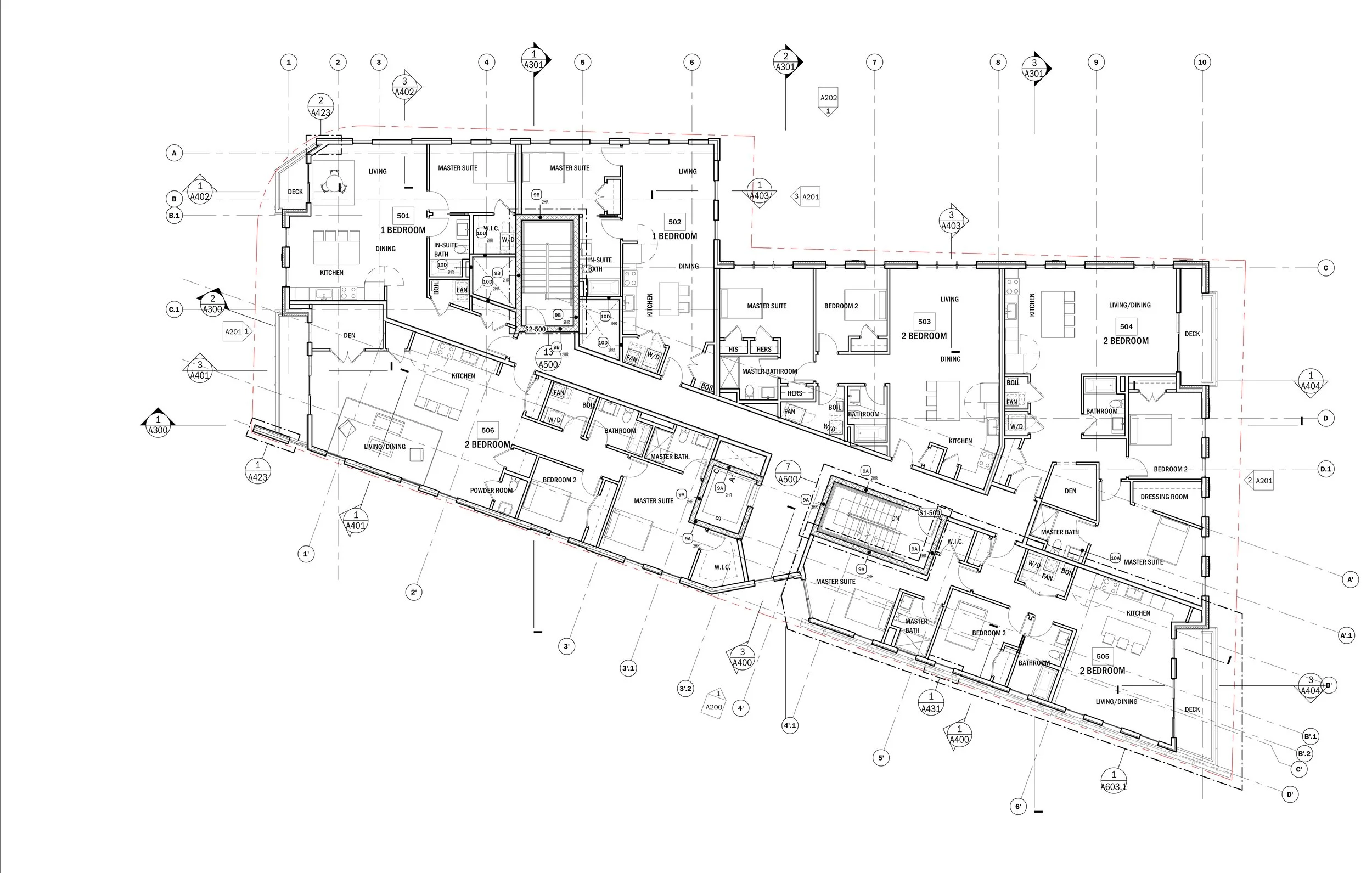
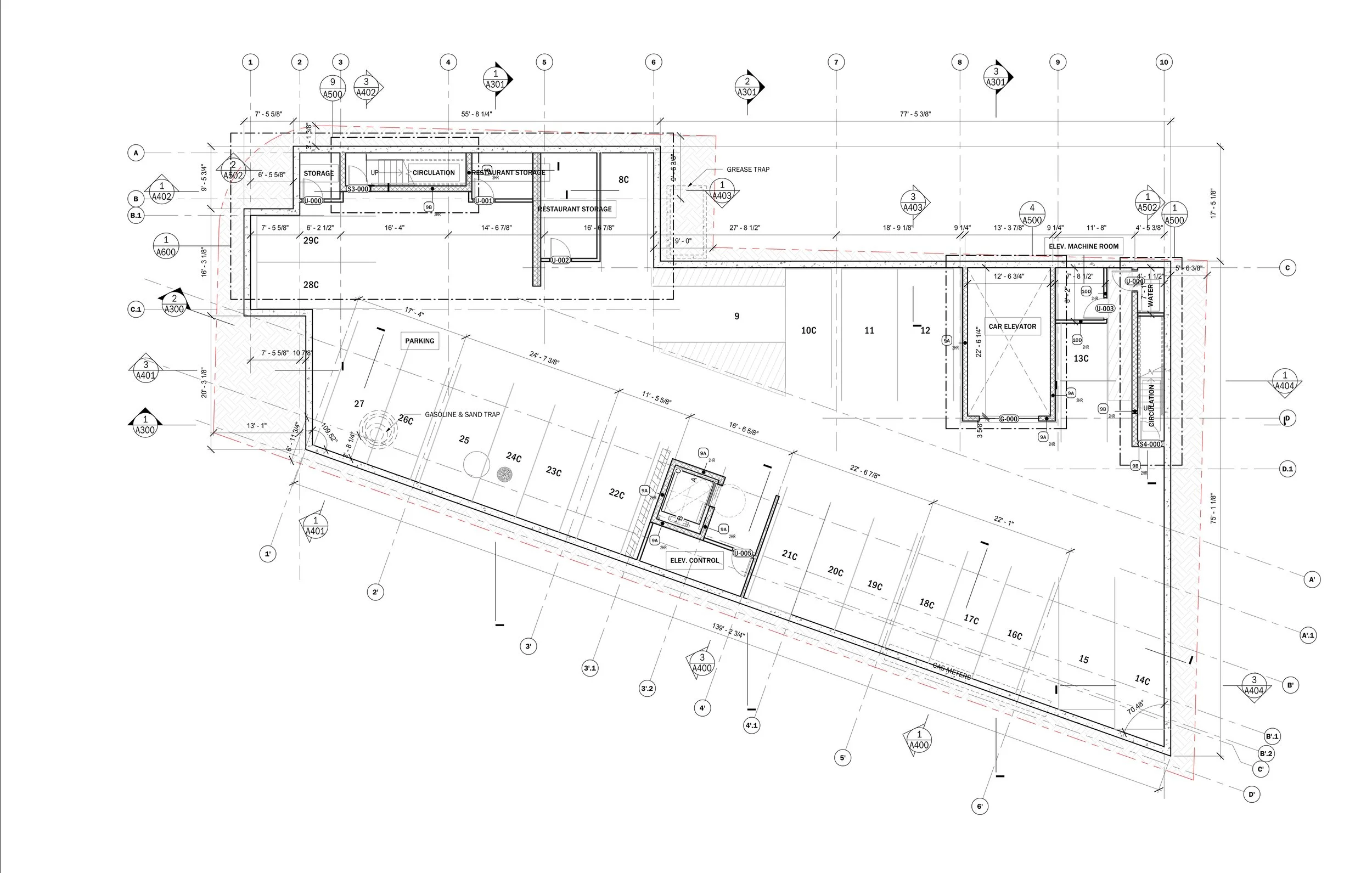
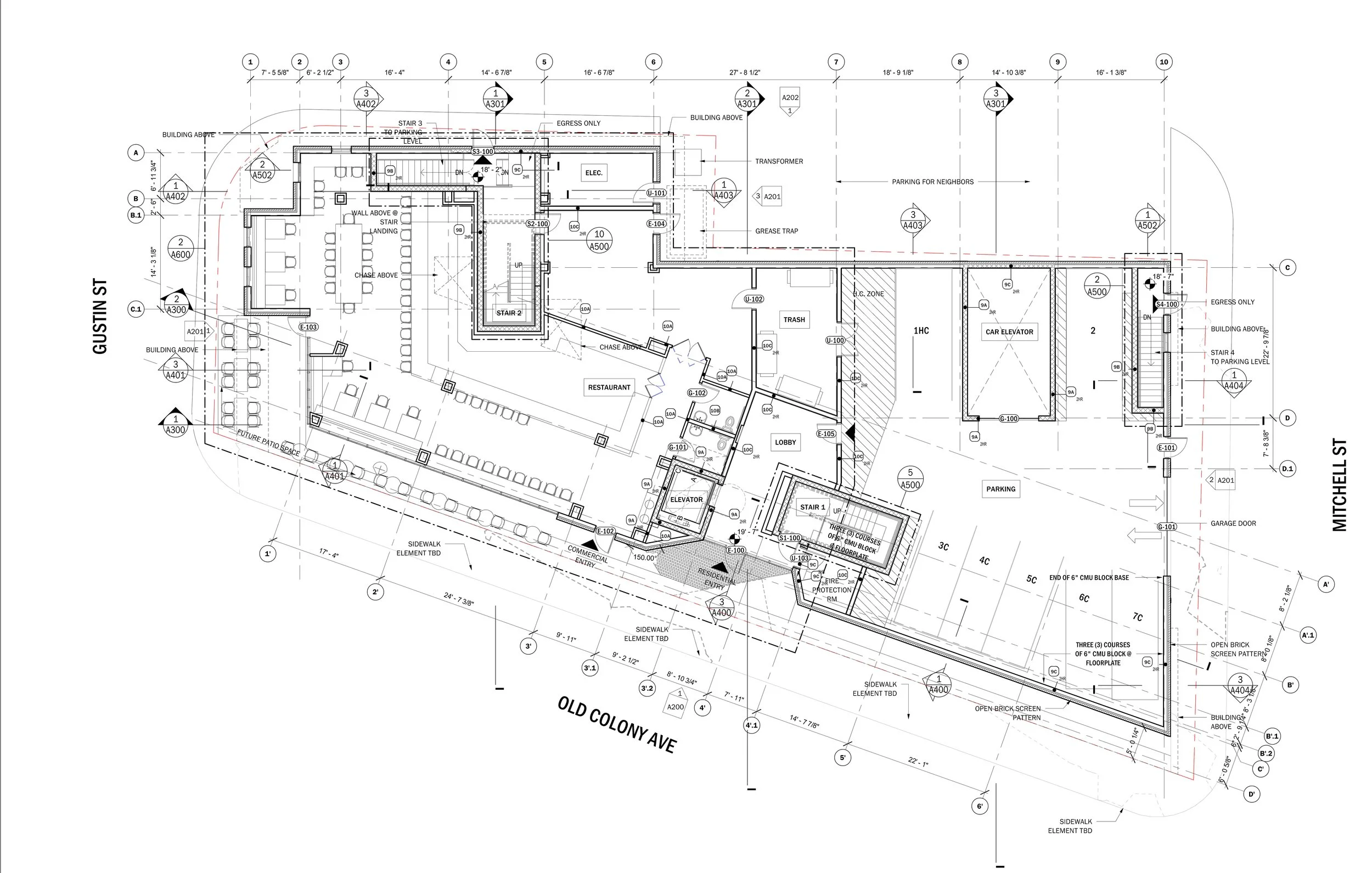
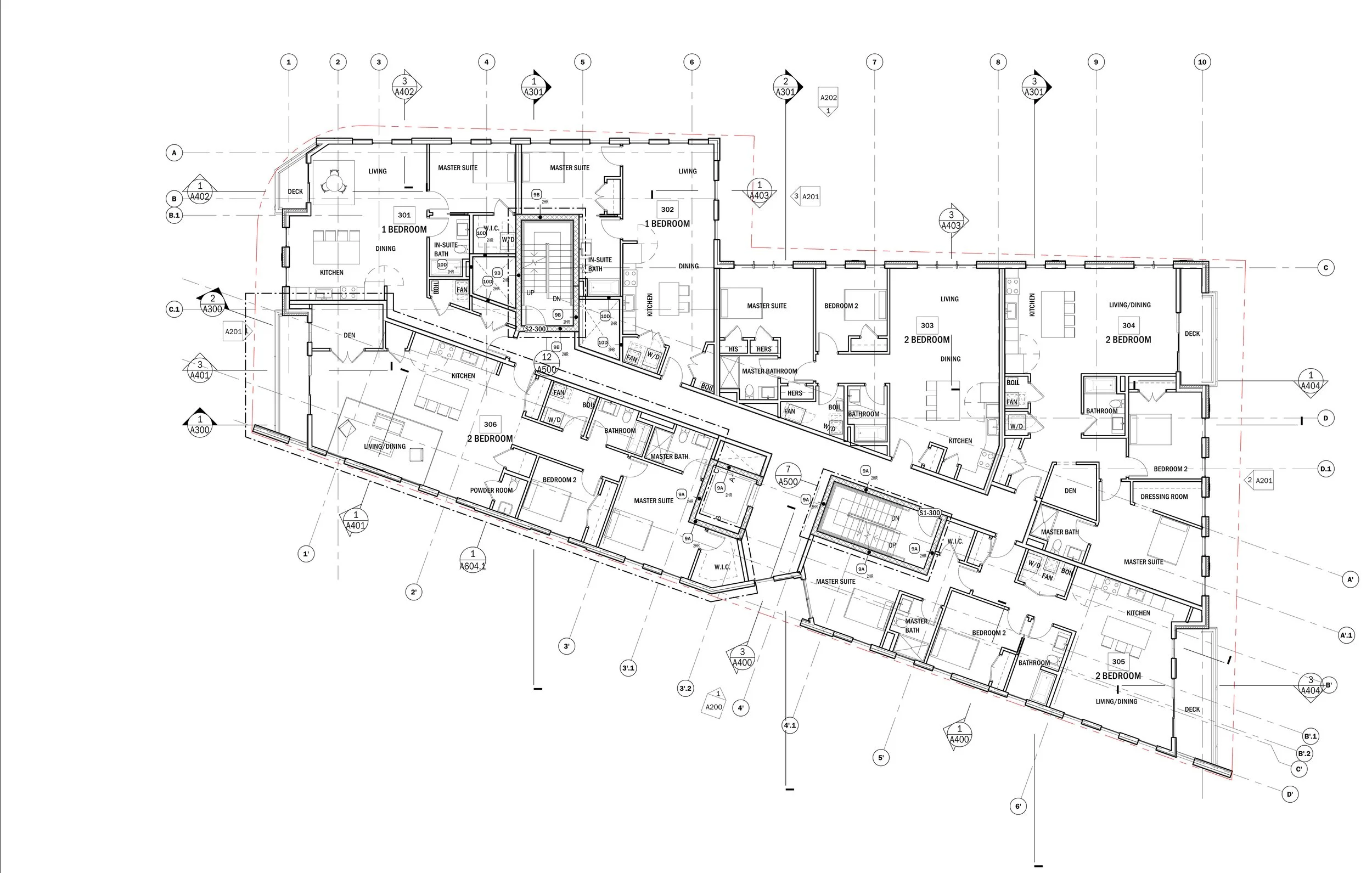
The floor plan is organized across 5 levels as follows:

  • Basement: Parking, Utilities/Storage

  • 1st Level: Restaurant, Parking

  • 2nd - 5th Level: Residential

Each residential level contains 6 units and 4 private patios. The unit breakdowns are as follows:

  • Unit 01: 1 BR (940 SF), Private Patio

  • Unit 02: 1BR (740 SF)

  • Unit 03: 2 BR (1,130 SF)

  • Unit 04: 2BR (1,370 SF), Private Patio

  • Unit 05: 2BR (1,220 SF), Private Patio

  • Unit 06: 2BR (1,410 SF), Private Patio

/ 01 / process

/ 02 / sketches

/ 03 / drawings

/ 04 / renderings*

*Produced by a third-party agency

/ 05 / photos

Next
Next

35 South Huntington