/ 35 south huntington ave

Role:          Project Architect / Assistant PM
Type:         Residential + Mixed-Use
Location:   Boston, MA

*Images/photos self-produced during employment at RODE Architects, unless otherwise noted.

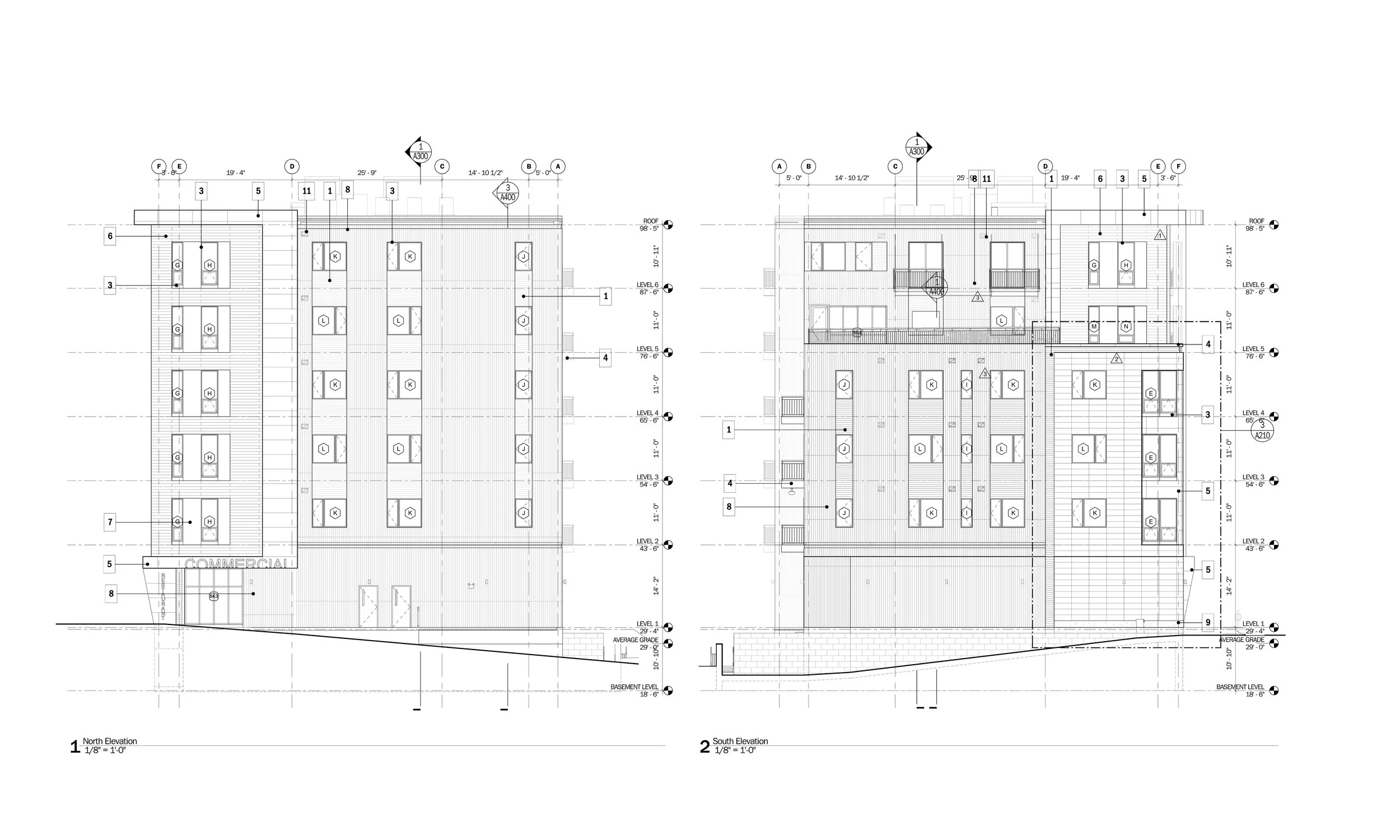
35 South Huntington is a 4-and-6-story building located in Boston’s Longwood Medical Area. The strategic placement of the two shifting volumetric forms reacts to the scale of the adjacent row homes and provides sweeping views across Mission Hill. A contemporary material palette of fiber cement board, terracotta and metal panel draw inspiration from the surrounding context and create a strong, cohesive identity along South Huntington’s segmented urban grid. Project involvement included initial design concept, permit submission, design development, construction document production, shop drawing review, consultant coordination, and construction administration.

The initial design concept of two offset volumes wrapped in a continuous canopy was exceptionally articulated through a material palette of fiber-cement board, metal panel, and terracotta. A rhythmic window layout that defines the mix of interior units is accentuated by a field of terracotta panels, whose dimensions are standardized to match the window widths. Infill full-height panels of fiber-cement board define the upper volume, where brake metal frames offer a slight shadow line and sophisticated visual interest.

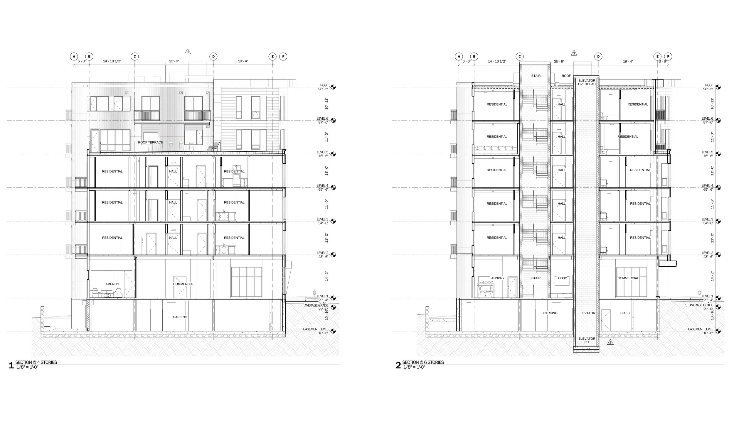
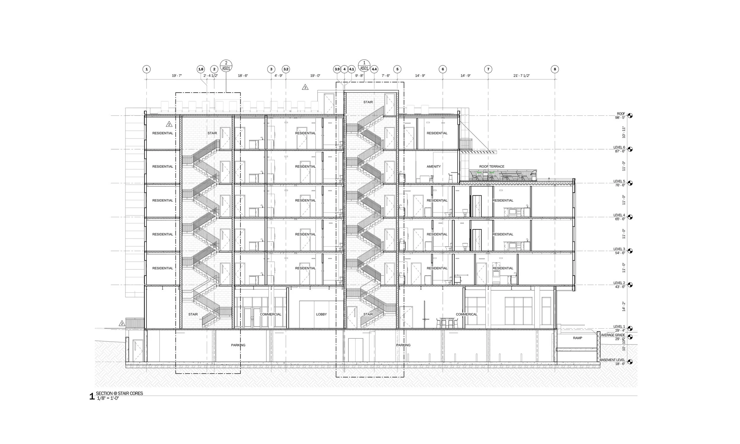
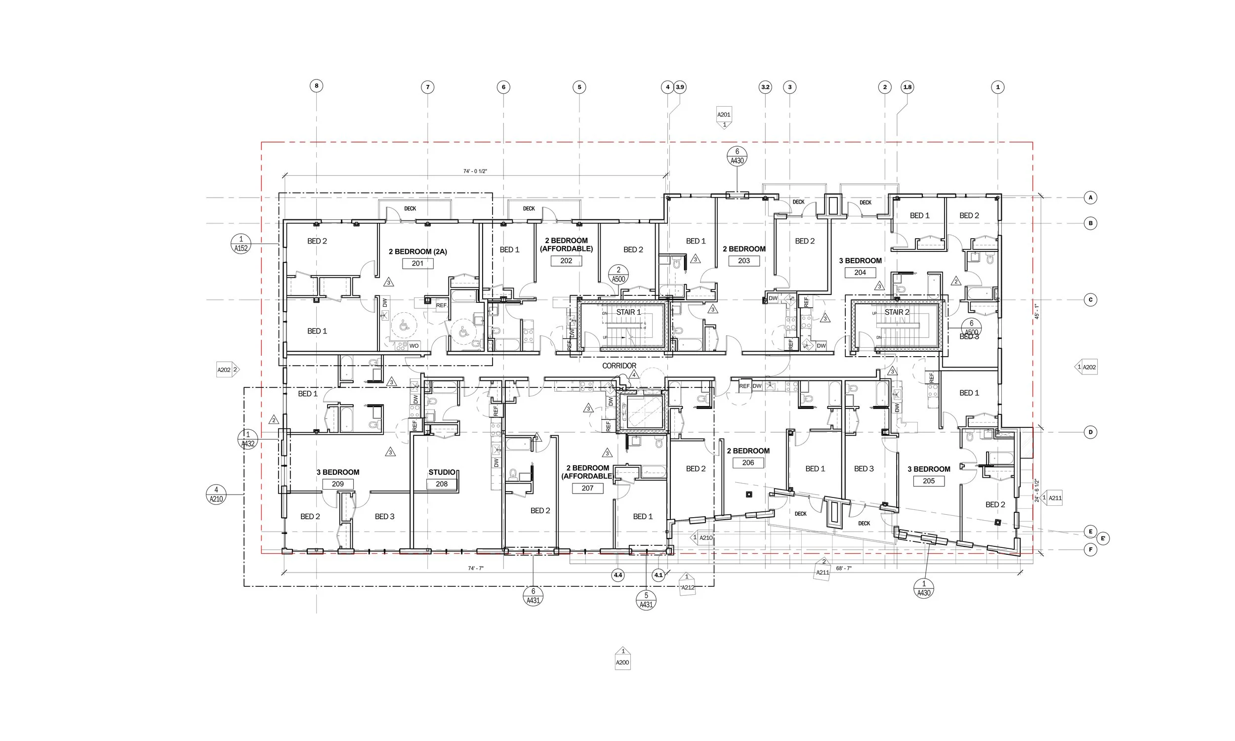
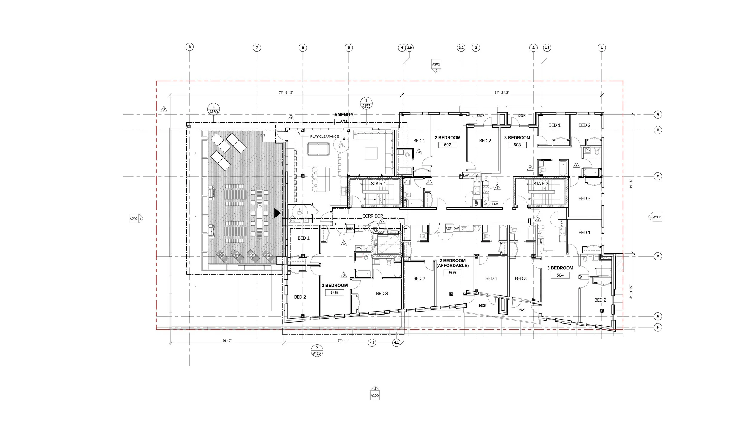
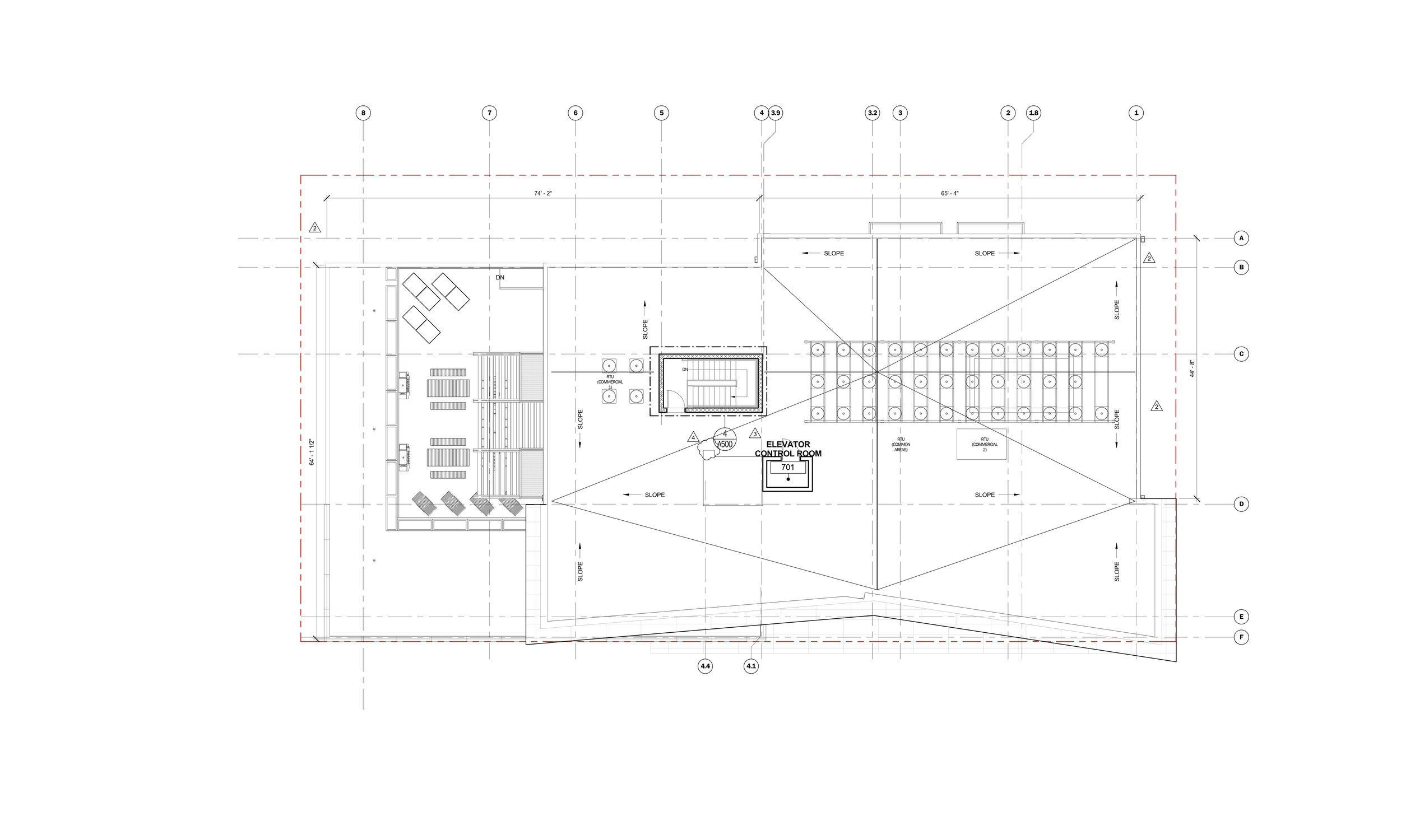
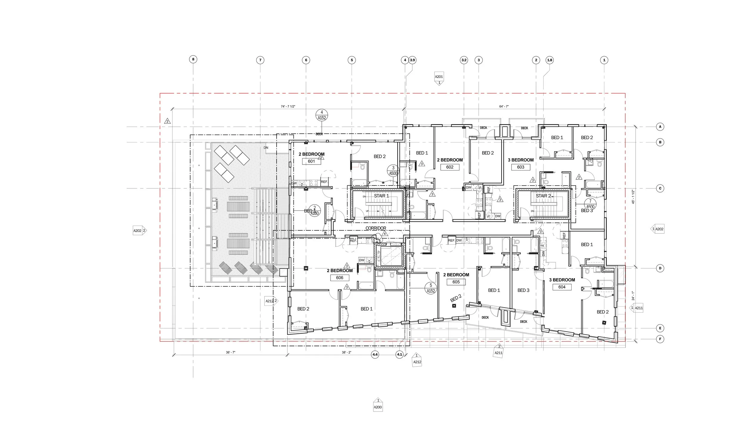
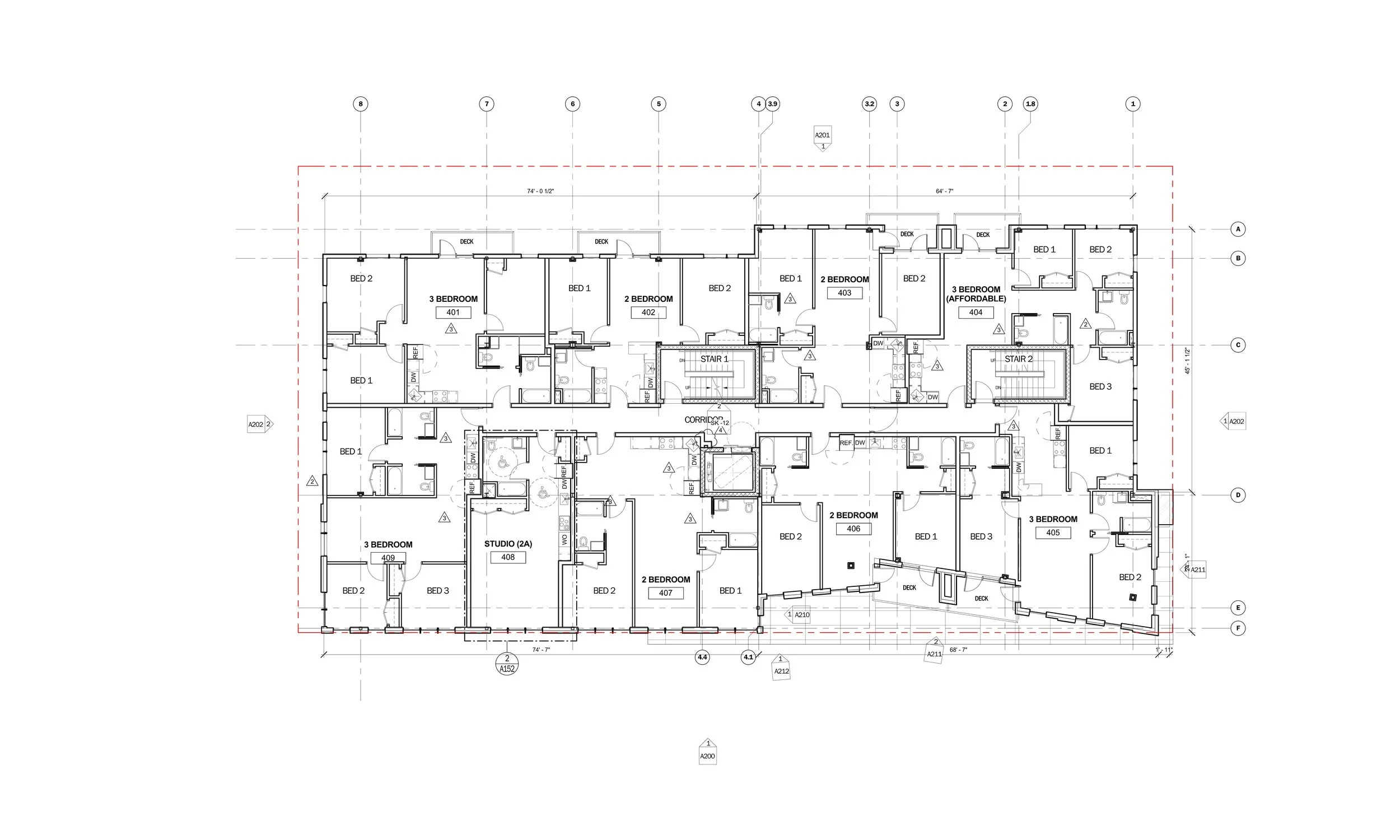
The floor plan is organized across 6 levels as follows:

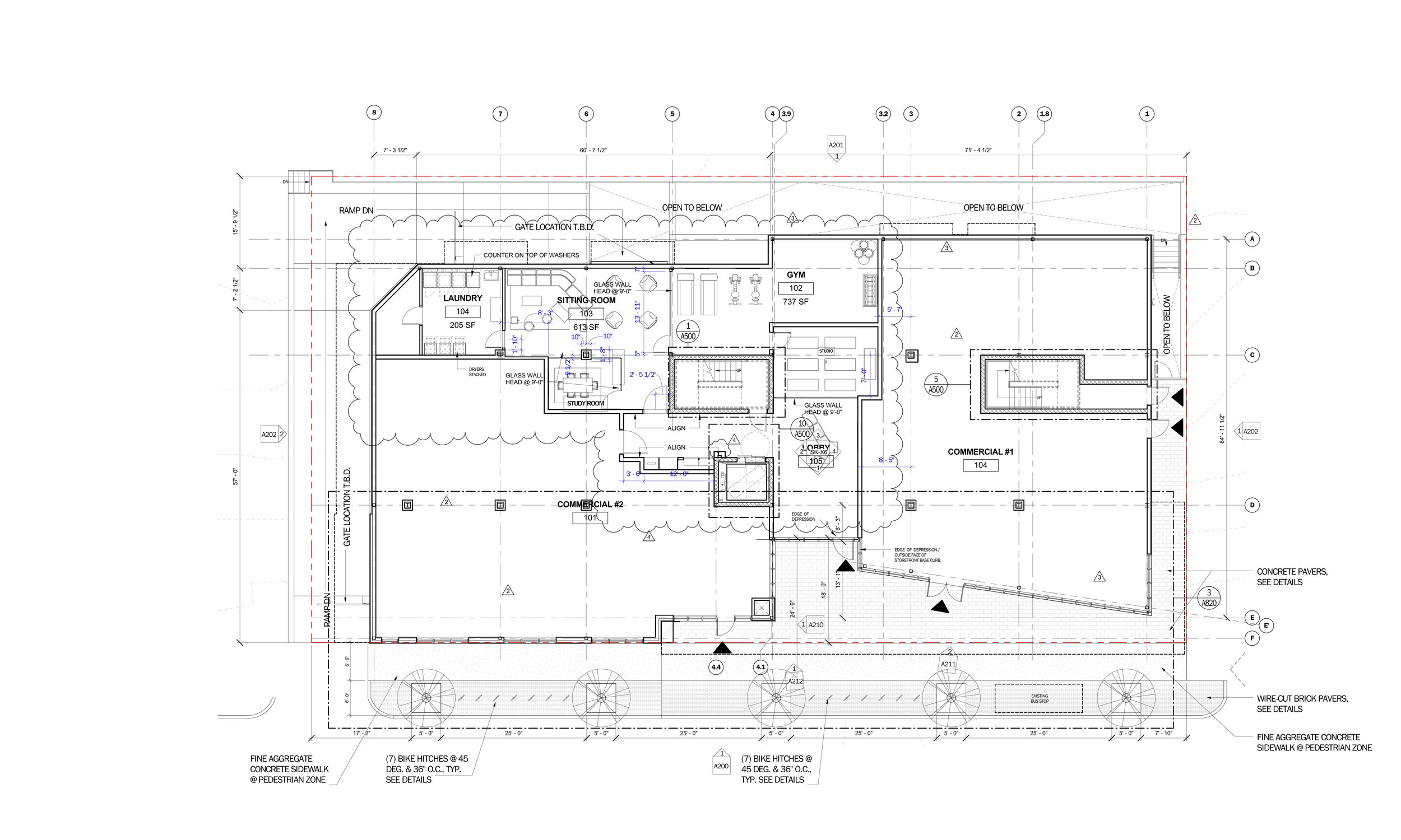
  • Basement: Parking, Utilities/Storage

  • 1st Level: Commercial Space (x2), Community Lounge, Fitness Studio, Utilities

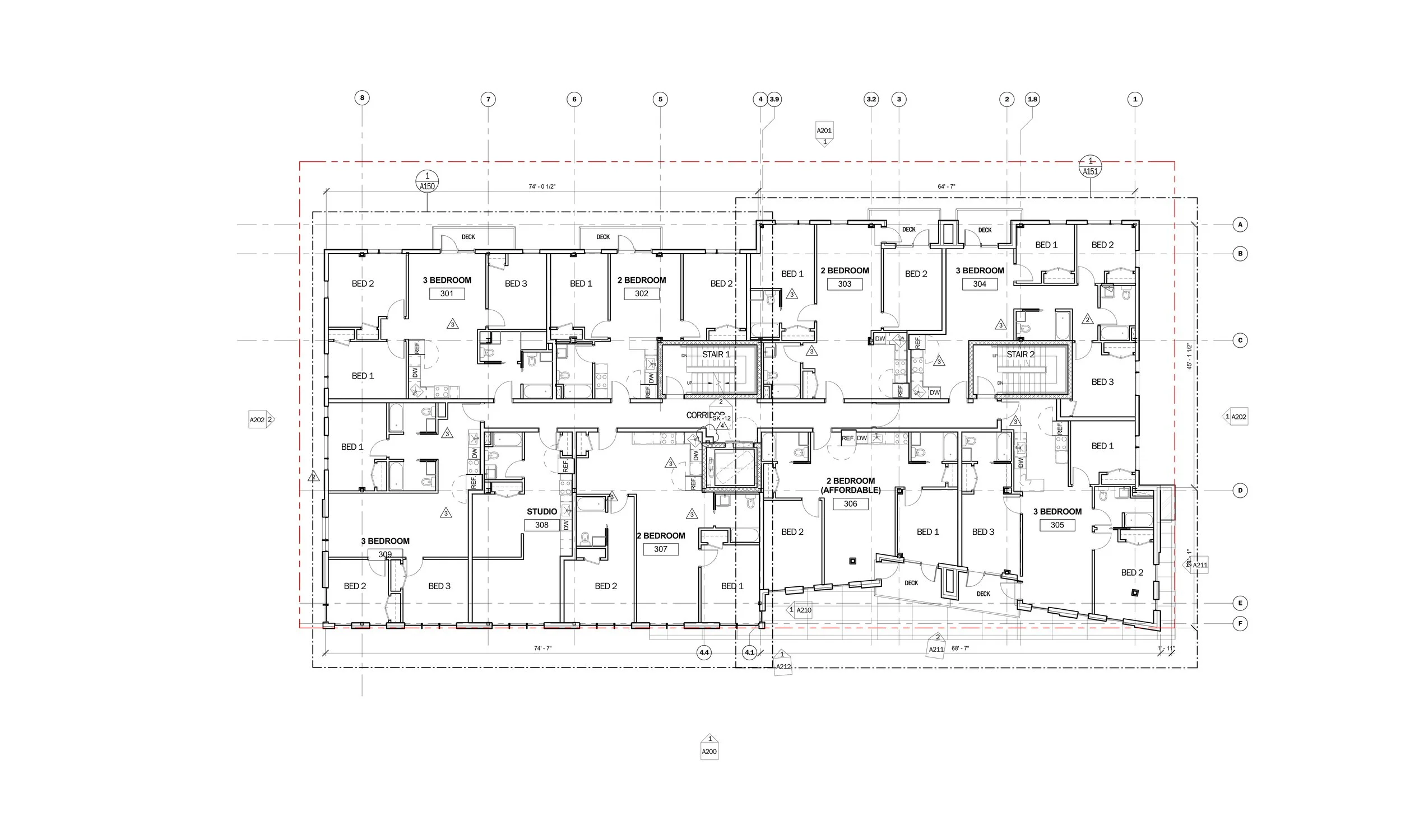
  • 2nd - 4th Levels: Residential (9 Units/Floor)

  • 5th Level: Residential (5 Units), Community Roof Deck, Community Room

  • 6th Level: Residential (6 Units)

In total, there are 38 apartment residences, 26 parking spaces, bicycle parking and 7,100 square feet of ground-floor retail space offered across two independent areas.

The unit mix is composed of studios, two bedrooms and three bedrooms. Five units are designated as affordable market-rate, and various building amenities are spread across the ground and fifth floors. The MBTA Green Line Riverway Station stop is located directly in front of the building, and various bus lines provide service immediately adjacent to the property. The building lobby and commercial spaces are offset from the property line at the ground level, formally defined by a “ribbon” frame which begins at the fifth level roof deck and carries down to the building’s sidewalk, forming the entry canopy and formally defining the public realm.

/ 01 / process

/ 02 / drawings

/ 03 / photos

Previous
Previous

232 Old Colony